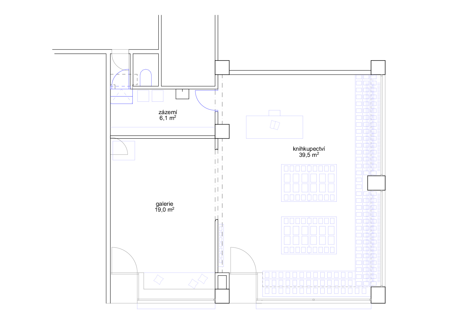
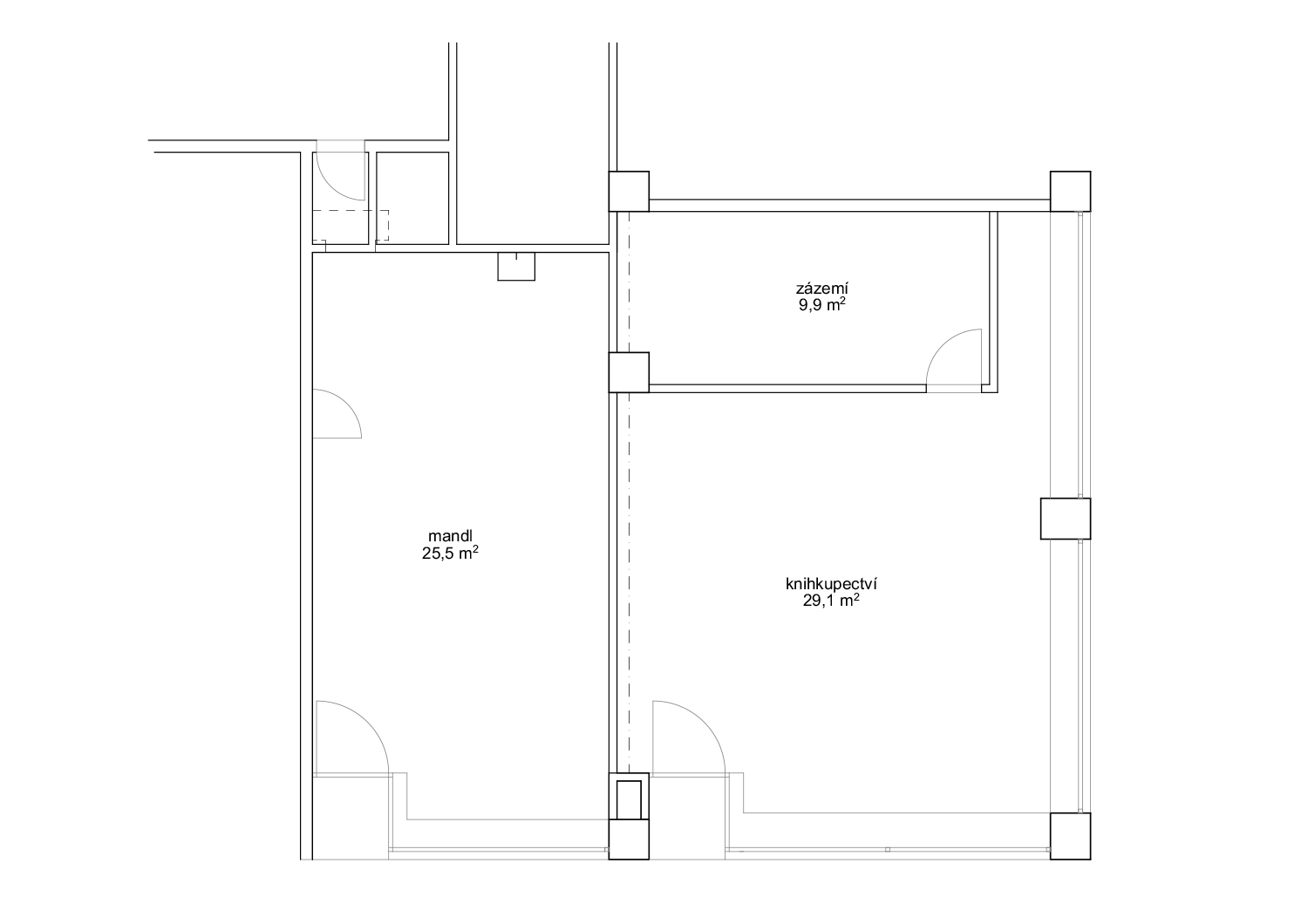
knihkupectví page five          letná          bookstore renovation & new gallery          2024 - project           2024 - first part of realisation          knihkupectví page five          letná          bookstore renovation & new gallery          2024 - project           2024 - first part of realisation          knihkupectví page five          letná          bookstore renovation & new gallery          2024 - project           2024 - first part of realisation