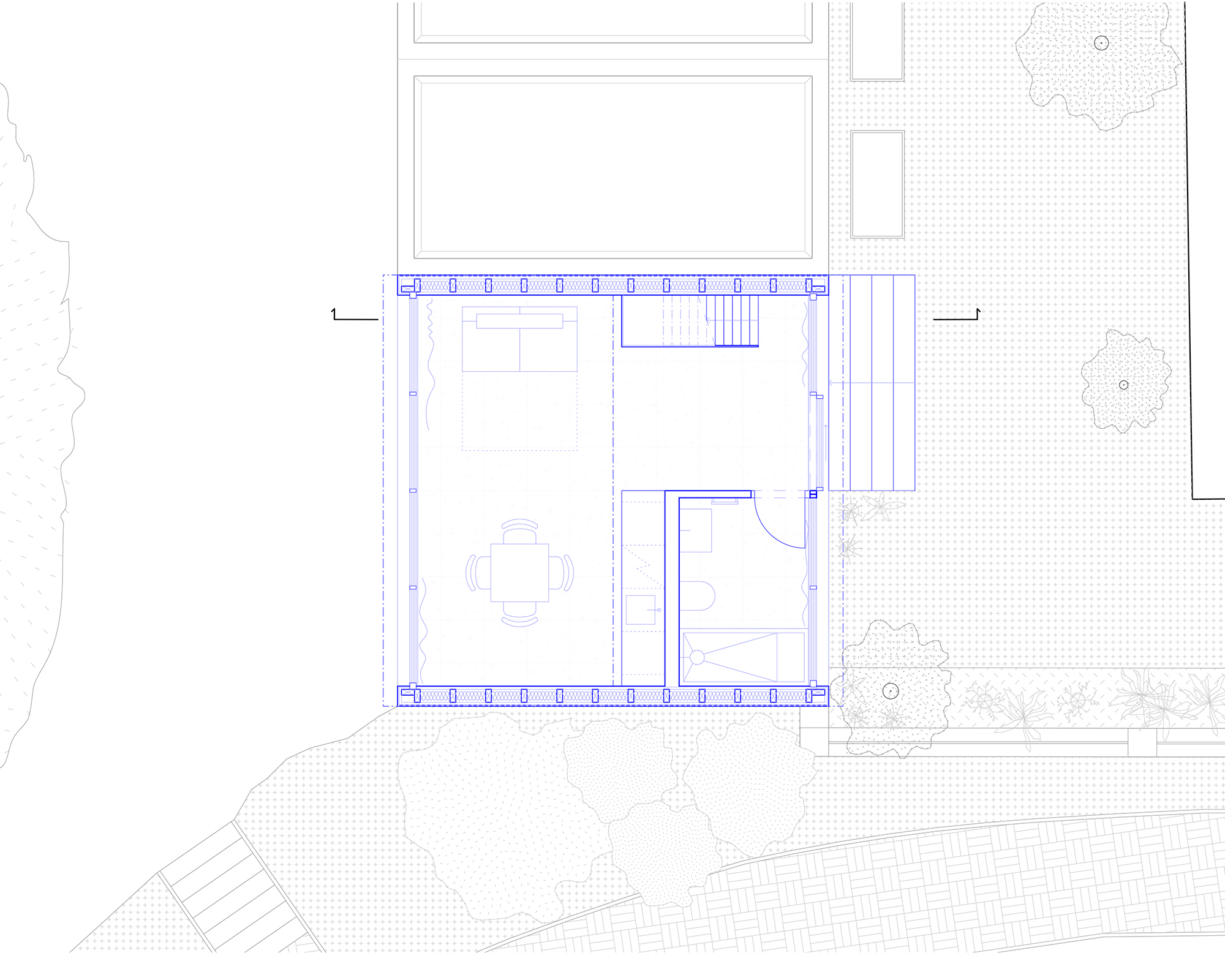
tabor          guest house          2025 - project           2025 - ongoing realisation           tabor          guest house          2025 - project           2025 - ongoing realisation           tabor          guest house          2025 - project           2025 - ongoing realisation           tabor          guest house          2025 - project           2025 - ongoing realisation